Project Description
Lumintu is a house situated in the landfill area of Pantai Indah Kapuk, North Jakarta, where temperatures can soar to 35-40°C during the day. Given the building’s west-facing orientation, its proximity to the beach, and the barren landscape devoid of vegetation, an effective strategy was necessary to limit direct sunlight penetration into the interior.

To address this, Lumintu House combines industrial and traditional techniques in its canopy design, which resembles the branching pattern of a tree extending outward, creating a shaded space similar to sitting under a tree. This design also protects the surrounding plants from excessive sunlight and forms a soft, seamless transition, reflecting the philosophy of “Lumintu.”

Credit: KIE
Skilled craftsmen play a crucial role in the construction, meticulously bending each steel component one by one. This careful attention to detail in shaping each piece reflects a blend of modern construction efficiency with traditional craftsmanship, enhancing the value and character of Lumintu House.
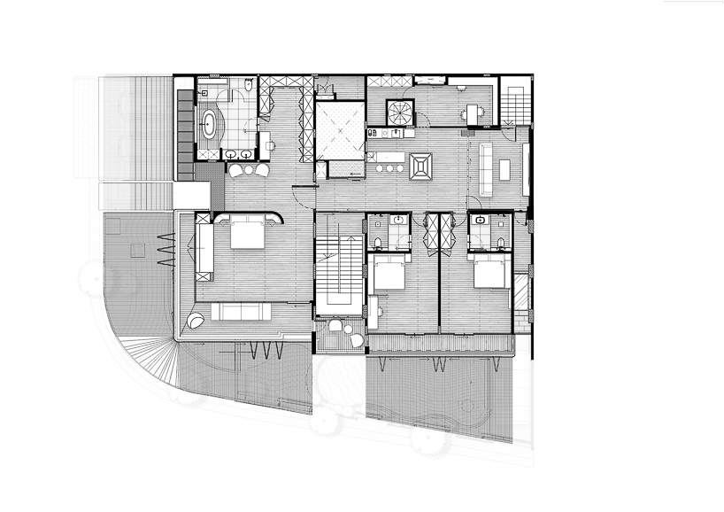
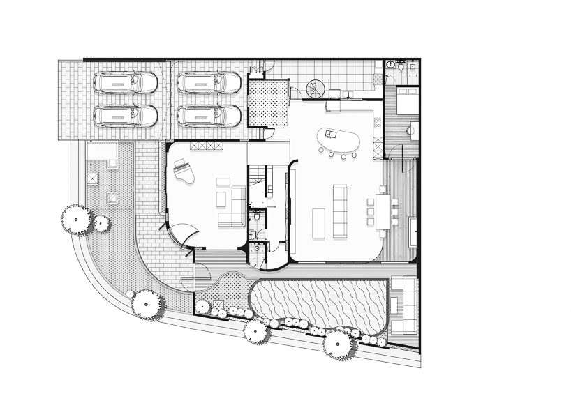
The spacious, column-free main area on the ground floor integrates seamlessly with the outdoor space, expanding the feeling of openness, facilitating natural airflow, and offering views of the tropical landscape from within the house. Notably, the house features an air gap between the roof and the floor below. This gap allows hot air trapped between the floor plates and the ceiling to escape, creating effective cross-ventilation. High ceilings and skylights optimize natural lighting, while ventilated openings covered with mesh to prevent insects from entering the building.

Credit: KIE
Lumintu House also has a rooftop garden that provides insulation for the spaces below. This approach helps reduce the indoor temperature by approximately 3°C. Additionally, Lumintu House minimizes environmental impact during construction by utilizing locally sourced materials and skilled local artisans. Overall, the project reduces the carbon footprint while ensuring long-term durability and low maintenance.
















Project Credit :
Completion Year: 2022
Gross Built Area (m2/ ft2): 898.63 sqm
Project Location: North Jakarta, Indonesia
Lead Architect : Realrich Sjarief
Design Team : Alim Hanafi, Joana Agustin
Support Team : Rico Yohanes, Aqidon Noor Khafid, Sharfina Nur Dini, Sofiana Estiningtya, Pandu Nazarussadi
Prefinishing Design Team: Erick, Septrio Effendi, Miftahuddin Nur Hidayat, Kanigara Ubazti Putra, Fadiah Nurannisa, Tirta Budiman, Larasati Ramadhina
Photographer | Photo Credits: Aryo Phramudhito, KIE Arch
Senang sekali dan bersyukur atas kesempatan terlibat dalam salah satu proyek paling menantang di RAW Architecture. Dalam proyek ini, saya menikmati setiap prosesnya dan banyak belajar dari berbagai aspek. Saya terlibat aktif dalam diskusi yang hampir berlangsung setiap hari, baik dengan klien maupun dengan tim di lapangan. Tantangan yang dihadapi tidak hanya terkait dengan penyelesaian masalah teknis dalam desain-desain eksperimental, tetapi juga bagaimana menyinergikan berbagai pemikiran dari kepala-kepala tim di lapangan untuk mencapai tujuan bersama yang telah diamanatkan oleh klien.
Penyelesaian masalah desain dan konstruksi dengan anggaran yang seefisien mungkin memaksa kami untuk berpikir dan bertindak secara kreatif. Selain itu, pengelolaan data dan informasi yang terus mengalir dan berkembang setiap waktu menjadi tantangan tersendiri. Kami dituntut untuk mensinkronkan data lapangan, gambar, serta pemikiran secara efektif, mengingat keterbatasan waktu dan energi. Dari pengalaman ini, saya mendapatkan banyak pembelajaran berharga yang memperkaya kemampuan saya dalam menghadapi situasi kompleks di lapangan.
Alim Hanafi
Saya sangat senang dan bangga atas prestasi yang sudah dicapai RAW sampai saat ini. Semoga seterus RAW makin mengibarkan nama baiknya dan semakin besar. Sukses terus RAW dan team. Saya selaku alumni berterima kasih atas kesempatan yang pernah diberikan RAW pada saya. Ini kabar yang sangat menyenangkan. Lumintu house akhirnya selesai dengan apik!
Fadiah Nurannisa
Tadi habis liat juga di designboom nya jadi flashback keinget gimana dulu eksplorasi yang dilakuin sama temen2 RAW dan gimana elaborasi nya ke tim lapangan (dulu sama pak Endang dkk), senang liat dokumentasi akhirnya keliatan fulfilling dari semua effort yang dilakuin. Sukses selalu juga buat kak Rich dan temen2 RAW ya, looking forward to be back visiting guha 😁
Tirta Budiman
Cerita2 waktu proses designnya waktu itu sebenernya sempat ganti2 yg ngerjain. Gw inget d akhir2 kerja d RAW itu megang banyak lebih bagian konstruksinya. Gw itu terakhir megang waktu konstruksi sampe mulai nge cor lantai 2 kalo gak salah,
Ngerjain project rumah itu excited bgt sih karena rumah itu untuk dr luasan besar, lalu segi struktur juga lumayan advance dan waktu itu banyak belajar interdisiplin.
Salah satu pengalaman berharga itu adalah tetangga lahan kita sesuatu hahaha. Jd kita banyak juga ngehadapin masalah non technical ya dikonstruksi.
Tp kita jadi belajar juga design dan kegiatan konstruksi kita itu bakal berpengaruh ke tetangga di sebelah, jadi perlu d pikirin juga. Kalo masalah desain sih rumah ini jadinya lumayan jauh sih dr desain awal. Tapi facadenya jadi lebih bagus dari sebelumnya. Sama dulu sering ada monyet datang ke lahan haha. Gak tau monyet darimana.
Miftahuddin Nurdayat
Lumintu adalah proyek ke-3 yang saya alami dalam pekerjaan saya di studio RAW. Saat itu saya Bersama dengan kolega, sekaligus senior saya saat itu yakni Icha mencoba membuat tracing lengkungan kolam renang dimana sebelum di lakukan pengecoran sangat diperlukan untuk menjaga bentukan yang presisi. Dan ada beberapa pekerjaan juga yang terlibat didalamnya seperti pembuatan canopy rooftop, pembuatan kolam ikan rooftop dan lain-lain. Walaupun tidak terlalu lama ikut dalam proyek Lumintu ini, tapi menurut saya proyek ini sangat berkesan untuk saya.
Menurut saya ini adalah salah satu proyek yang sangat ekploratif yang pernah dilakukan oleh Kak Rich. Jendela yang memiliki bentuk seperti lengkungan yang tidak biasa, seperti lengkungan yang dibuat dari tali yang ditarik menyerupai bentuk parabolic atau biasa disebut catenary. Bentuk pintu yang terlihat rata dan kotak dari tampak depan, namun ternyata pintu tersebut tidaklah rata tapi berbentuk lengkungan, karena mengikutin sudut bangunan. Dan yang lebih menakjubkan menurut saya adalah saluran lubang-lubang Udara yang diciptakan melalui vent cap karena merespon iklim Jakarta utara yang lebih lembab dan sangat panas.
Saya sangat bersyukur bisa mengikuti sedikit dari proses pembanungnan rumah ini. Rumah ini sangat berkesan buat saya, dan jika diperbolehkan saya pasti akan studi Kembali rumah yang didesain kak rich ini, karena begitu unik dan menarik untuk dijadikan inspirasi. Semoga rumah dengan tingkat kesulitan yang amat rumit ini terus dapat menjadi pembelajaran bagi saya sebagai desainer muda untuk belajar berexplorasi dengan dasar mewujudkan impian klien yang dilakukan oleh Kak Rich. Sukses terus untuk Kak Rich dan studio RAW, karya-karya luar biasanya akan selalu ditunggu.
Rico Yohanes