Kategori
Project Bioclimatic House

Bioclimatic Home 01 – Rumah Putih

Ini adalah rumah yang kami desain sebelum Bare Minimalist di Jakarta berupa renovasi. Atapnya di perpanjang untuk mengantisipasi curah hujan dan diganti dari genteng ke penggunaan atap plastik. Sisi utara selatan dibuka, dan bangunan secara keseluruhan dicat warna putih. Struktur lama dipertahankan dengan optimalisasi 2 kamar tidur di lantai atas dan 1 kamar tidur di bawah. 

Kategori
Project Bioclimatic House

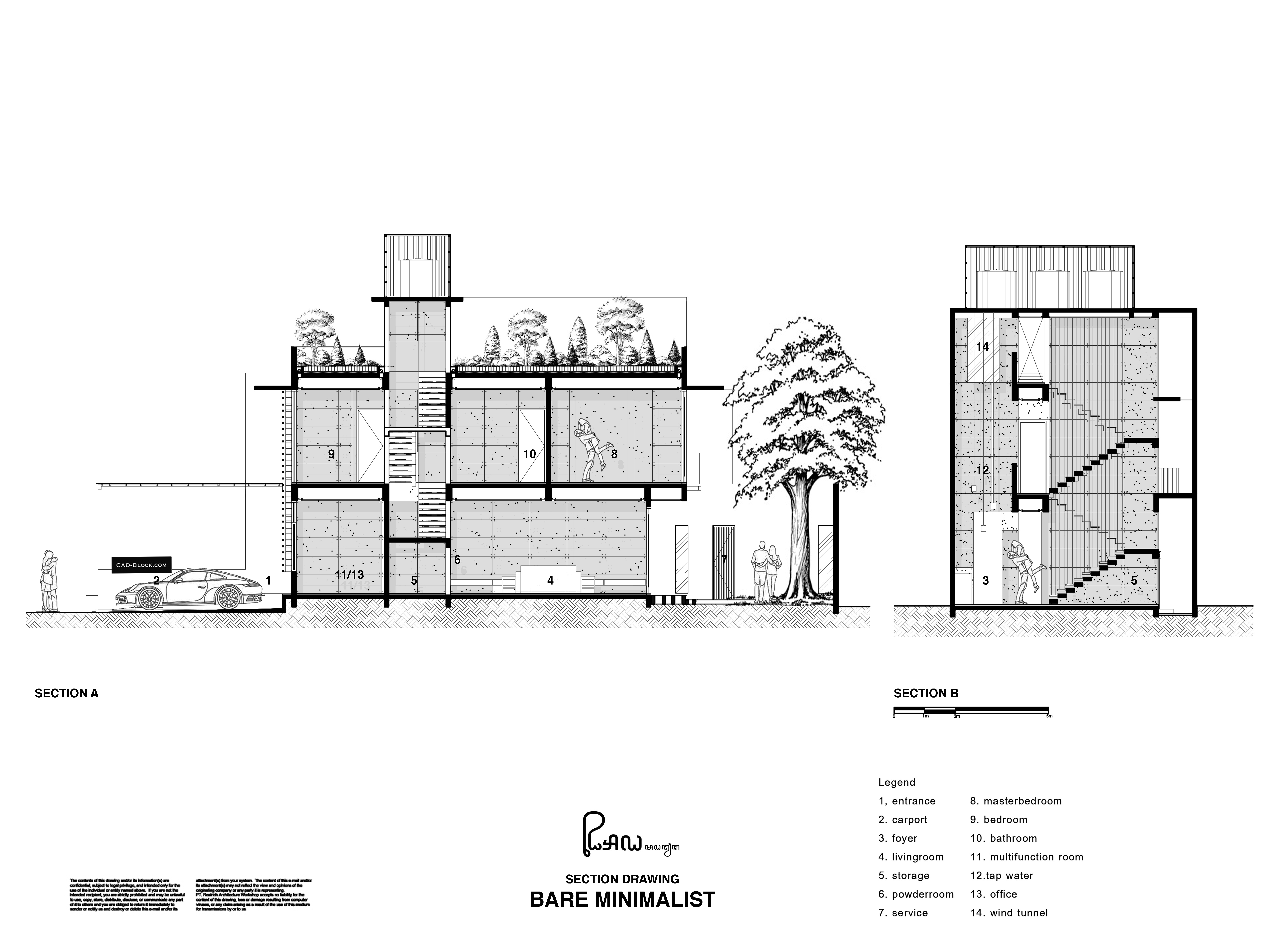
Bioclimatic Home 02 – Bare Minimalist

Bare Minimalist artinya adalah rumah yang tampil minimal, fitur utamanya adalah light and wind tunnel di tengah – tengah foyer yang menyatukan pintu masuk living room, bedrooms, dan tangga. Lahannya berukuran 8 x 24 dengan orientasi menghadap utara, timur dan selatan. Sisi barat ditutup dinding solid dan dilengkapi dengan sistem air minum terintegrasi. Materialnya menggunakan beton cetak, parkit bambu, kayu palet.

Kategori
Project Bioclimatic House

Bioclimatic Home 03 – Guha The Guild

Guha is an combination of new and renovation project based on previously “The Guild” located in Taman Villa Meruya. The Project consist of Omah Library, Dental Clinic, residence and Realrich Sjarief’s studio named Guha Bambu, The studio is Realrich Architecture Workshop (well known by name of RAW Architecture).

The renovation section is consisted on adding sequence for adding elaborated programs for Omah Library such as more storage for book shelves, bookstore and gallery. The circulation is designed to separate the public and private which is solved by separating the access at the entrance.

The new project, named Guha Bambu is at the east side. This building stands in the lot of 7.5 x 26 m size consisted new 3 storey Bamboo structure, 2 storey of basement. The technique to build the structure is elaborated from experimental school of alfa omega project. The technique separates the steel plane truss structure as a roof and bamboo structure to hold the 3 floor plate under steel structure roof.

Construction of Guha is elaborated into 9 materials to sum up craftsmanship experimentation in Realrich Architecture Workshop such as : steel, wood, glass, metal, gypsum, bamboo, plastic, stone and concrete. The layout is flexible, and open while some of the rooms is opened by minimum 2 doors allowing the further scenario while the program can be changed. The idea is basically addressing the tropical climate to open north south and close the facade at west side.

The Facade is basically basic material, concrete, vertical louver by steel and bamboo. The program it self challenge the typical housing in Indonesia to be mixed with more micro business programs such as education, even coffee shop in the future by maintaining privacy and opening itself to the public. The construction is done by generations of craftsmen from west java which integrate some of traditional fish mouth joint in bamboo constructions and more modern construction method such as steel and construction.

Kategori
Project Bioclimatic House

Bioclimatic Home 04 – Istakagrha

Located in Taman Meruya Ilir, West Jakarta region, Istakagrha meaning brick house, Situated in the increasingly crowded West Jakarta area, the 150 sqm house occupies a 150 sqm plot of land, 10m x 15m. Istakagrha is reflected by its name, brick House, it is a small and compact house with a orange painted color on the light weight brick, black colour , and rough concrete texture finishes.The expression creates humble and distinctive look.

“We have a dream to have a house which like a villa in Bali. A house more than a functional but a place to live and grow with feel of nature, we really love staying in tranquil house” explains homeowner Mr. Ferdian Septiono and Ms. Joice Verawati to Realrich Sjarief. The couple are graphic designer who are willing to have a compact Ecological house which is resortlike.

The architecture of Istakagrha separated inside and outside with the landscape of a barrier wall made by light weight brick. The combination is stacked with pattern of solid void, which provide sense of privacy and security, meanwhile allowing sunlight and air circulation to flow inside the living room. The Ecological Approach of this house elaborated from Realrich Architecture Workshop’s project such as Bare Minimalist project and the privacy design elaborated by Bris Soleil (sun breaker) elaborated from akanaka.

The house faces east side allowing morning sunlight come to the space at 9 am. The stair is placed at the west side, the west side is walled with brick to provide thermal insulation. The air ventilator is placed at the west side of the house above the stair from ground to 1st floor providing fresh air circulation through air stacking effect. The house has one open air receiving area as anteroom then no more separation wall between living, dining, and cooking which In the living room, the kitchen also takes some importance its final layout is the result of few adjustments based on the owner’s domestic habits. The only enclosed space in the second storey is guest room, which doubles as a working space and guest bed room. A simple foyer and a light well integrated with stair, and art work is placed after the receiving area at the west side of the building. The second story houses private spaces. At the end of the corridor is 1 bedroom with shared bathroom and a walk-in closet. An simple and functional feel showering area is attached to the bathroom. The material used in this building is choosed based on the best craftmenship available in Jakarta, concrete structure is used because of the cost efficiency, engineered wood is used because of the look and lightness, metal frame for facade and sunshading are used because of durability.

3 types of brick was used based on each character. First, is light weight brick, 200 x 600 x 100 mm, for the facade. Light weight brick was chosed because of the lightness, precision and can be easily molded and constructed as facade/ Second, orange brick which is most common material used in Jakarta, The third one is the ceramic brick 50 mm x 150 mm x 10 mm which is used for covering the stair wall as insulation and interior surface. An additional bedroom, bathroom and a stair way to the attic on the 1st floor is linked by a corridor leading to an open space beside the void leading to the stairwell and stair case through compact space. Istakagrha showed an example of small house in Jakarta with small plot of land with sustainable design approach and keeping privacy from out side to inside through simple form which is stacking brick.

Kategori
Project Bioclimatic House

Bioclimatic Home 05 – Kampono

Setiap beberapa bulan sekali pasti ada kalanya kami (saya dan Laurensia) menghabiskan waktu bersama Mirza dan Adhisty. Lingkaran pertemanan kami tadinya saya pikir tidak beririsan dan ternyata sangat beririsan, terkadang ada saja teman atau klien kami yang saling kenal.

.

Dua orang ini unik, karena apa yang kita bicarakan biasa berkutat akan kehidupan sehari – hari, keluarga, pekerjaan, sampai karya arsitektur yang termuktahir yang sedang kami kerjakan.

.

Satu saat mereka bercerita, bahwa rumah Kampono menghadap ke kiblat. Saya sendiri pernah menulis sebuah postingan tentang tangan yang berdoa. Doa yang menghadap sisi barat memberikan keteduhan, dan kepercayaan akan niat untuk berbuat baik. Di balik itu memang fasade kaca di rumah ini serta merta dihadapkan ke arah barat sisi terpanas yang juga membingkai pohon eksisting di sisi tersebut, hasilnya adalah bayangan-bayangan yang hadir mewarnai ruang keluarga memberikan ruang yang sinematik menuju sore hari.

.

Saya menulis kalimat tentang simbolisme disini , “bentuk – bentuk lengkung tersebut secara sadar membentuk symbol jari yang menapak bumi, yang menyiratkan bentuk doa di dalam konsep tangan yang sedang berdoa di dalam tarian. Di dalam proses desain iterasi bentuk lengkung banyak sekali dicoba dan digunakan dari bentuk yang liar sampai bentuk yang tidak lebih – tidak kurang dengan takaran yang pas.

.

Permainan bentuk ini dimulai dari proses pengolahan bentuk partii (susunan organisasi sub-massa) yang jelas dahulu, dan

kemudian tiap- tiap massa tersebut di acak dan disusun ulang menurut dasar kriteria seperti : proporsi ruang, arah pandangan, dan kemungkinan – kemungkinan ruang yang tidak

terduga yang terbentuk. Proses in berlanjut dengan kuantitas pilihan yang banyak, sampai terbentuk komposisi yang optimal.

.

Pendekatan ini dibahas Antoniades dan Jean Labatut di dalam pendekatan yang desain inklusif dan bagaimana perspektif yang berbeda, aktor yang berbeda berpengaruh di dalam sebuah alam kreatifitas yang membentuk kenyamanan penghuni.

.

Membentuk lengkungan adalah pemberontakan terhadap keseragaman, dan bentuk yang itu – itu saja, mendekati alam dan juga pertanda akan pemberontakan terhadap rasionalitas melalui intuisi dan percobaan desain. Di dalam

kasus ini pemberontakan dijadikan alasan untuk membuka sisi terentan di iklim tropis, dimana melalui desain justru penghuni bisa mendapatkan kenyamanan sekaligus, pandangan, bayang – bayang, sinar matahari, udara segar, dan semuanya adalah seni untuk perlawanan terhadap diri sendiri.

Di dalam alam seni hal tersebut menjadi sebuah pernyataan akan visi misi, bahwa klien percaya pada eksplorasi sang arsitek. Sebuah perjalanan seumur hidup.

Kategori
Project Bioclimatic House

Bioclimatic Home 06 – Puri Wirawan

Yang menarik di rumah ini adalah teknik Memecah massa menjadi 3 bagian yang berbeda, dengan tidak menempel pada dinding samping. Diluar seluruh teknik aristektural, rumah ini juga menjadi representasi budaya toleransi yang terdapat di dalam rumah Indonesia, beberapa generasi yang bisa tinggal bersama di dalam satu rumah. Hal ini ditandai dengan pengelompokan ruang tidur dengan kamar mandi dalam dan memiliki break out spaces di koridor dan ruang keluarga yang bisa menampung lebih dari 20 orang di dalam program ruang.

Om Frans adalah orang yang saya temui setiap kali membahas rumah ini, dari dia kami banyak berdiskusi berdua mengenai pembiayaan, materialitas, kehidupan dan mimpinya untuk keluarga besarnya. Di dalam diskusi ia juga kerap mengajak anggota keluarganya dan menyebutkan referensi-referensi yang dimilikinya. Ia berdiskusi dengan santai, dan melakukan observasi dengan cermat, ia mampu membaca situasi melalui tabel – tabel komparasi meskipun ia tidak memiliki latar belakang ilmu bangunan, ia mendengarkan dan mau menerima banyak hal baru.

.

Di dalam perjalanan mendesain rumah tersebut, saya belajar bahwa masalah data, pembiayaan, skedule, dan menjaga hubungan dengan keluarga menjadi sangat penting untuk membuat sebuah karya yang kolaboratif dan iteratif.

.

Di masa- masa terakhirnya om Frans masih sempat membahas mimpi2nya tentang anaknya. Di dalam rasa sakit yang terus menerpanya, ia masih perhatian pada keluarganya. Begitupun ayah saya sedang sakit sekarang, dan situasi di dalam keluarga tidak mudah, tekanan muncul atas bawah kiri kanan, kami secara keluarga harus kuat. Maju kena mundur kena, dari masalah tulang, parkinson, saluran makan, dan saluran nafas. Dad, masih saja bisa mengelus kepala kami.

.

Dari situlah peran keluarga di dalam program arsitektural menjadi penting, mengolah kedekatan supaya kuat menjalani hidup bersama – sama, dari kelahiran, proses menjadi dewasa, dan tua dengan tetap menjalani yang berkualitas. Postingsn instagram bukanlah hanya sebuah puja puji saja tetapi sebuah sarana melakukan kebaikan. Di dalam sebuah karya yang kadang terlihat megah ada cerita yang dalam mengenai kehidupan. That is our mission in this crazy digital world.

Kategori
Project Bioclimatic House

Bioclimatic Home 07 – Tresno House

Located on the outskirts of Tangerang, Karawaci, one of the cities next to Jakarta, Tresno is the design of a simple tropical house in Jakarta. It’s simultaneously designed by the Geomancy principle creating 9 squares of the grid which forbids and allows some functions in the zoning such as the area of the north is for master bedroom and south for the kid’s bedroom. The squares consist of the 3.6 m x 3.6 grid in 9 square boxes with cantilevered space to allow pool, garden, and connection from ground floor to 1st floor flows from service level on the ground floor to living level on 1st floor and at the end to more private level on the 2nd-floor plan. The orientation of the sunlight is studied so the exposure is minimum from the west side facade by having a solid wall and minimum opening. the ground floor and 1st-floor functions to open to the garden. The landscape of “The Pucuk Merah trees” functions as barrier sunlight, and creating a microclimate in the periphery of the site providing microclimate.

At the center of the house, there is a skylight design based on the elaboration of the Tumpang Sari technique which was done in Guha. Basically it is a way to provide air stacking effect to cool the inside atrium space. The atrium connects bedrooms, kitchen, living room. Tumpang Sari is a form of traditional Architecture in Java, that the house is an act of prayer towards life for positive contribution, no pretension, life learning. In this case, the learning curve of understanding the basic needs of grids, modules, and atrium functions are key aspects.

The design uses craftsmen who polished the concrete from the previous projects such as The Guild project before with module 600 mm width x 1200 mm, length to avoid cracking between joints. The steel welder who comes from Subang, West Java combines the lightness of perforated metal and crafted to create a layer of shadow and privacy. The perforated steel is positioned as wall and floor plate in the indoor mezzanine level and outdoor balcony. An idea is a functional approach plus expression raw, rough, and honest material in combination with steel, concrete, and wood plus landscape and lighting and at the end in a combination of tradition.

Kategori
Project Bioclimatic House

Bioclimatic Home 08 – Pluit

Rumah ini terletak di Pluit, merupakan rumah satu keluarga pedagang, pebisnis yang menginginkan sebuah sanctuary. Kamar-kamar dirumah ini lumayan banyak, satu diatas, lantai mezanin satu, diatasnya lagi ada dua kamar. Jadi totalnya ada lima kamar didalam rumah yang ukurannya relatif kecil.

Rumah ini merupakan proyek renovasi, struktur lamanya tidak dibongkar sama sekali. Jadi kami relayout dan memasukkan cahaya melalui lubang-lubang void yang ada. Disebelah kiri ada kamar mandi yang diapit oleh udara. Ruangnya blong-blong, ketika naik tangga keatas baru ada tempat kerja orang tuanya. Jadi ruang berkumpul bersama anak-anaknya, ditengah-tengah ada ruang kerja dan ada void juga.

Ekspresi fasad depannya ada kisi-kisi kayu, karena mereka suka pergi ke Bali dan ingin mendapatkan ekspresi seperti resort. Kami membuat take ekspresi resort dengan membuat pengulangan bentuk kayu yang terbuat dari besi yang dicat kayu untuk durabilitas. Dan kita buat atapnya melayang tanpa banyak kolom, atapnya digantung dan dikasih kisi-kisi supaya tidak ada seperti tropical climate, thermal nya juga terjaga, suhunya tidak panas dan tidak terkena hujan. Di area depannya masih bisa diolah sebagai taman dengan komposisi arsitektural yang terbatas.

Kategori
Project Bioclimatic House

Bioclimatic Home 09 – Bukit Golf

New project ongoing at Bukit Golf BSD #RAWongoing. We design houses for three-generation families. The shapes of walls form the views of the golf course in South Jakarta and create airflow, natural lights, water catchment, and a series of landscapes that define bioclimatic architecture.

Kategori
Project Bioclimatic House

Bioclimatic Home 10 – Pelangi

Rumah ini merupakan proyek renovasi bangunan di atas lahan 8 x 20 yang mempertahankan sebagian dinding dan pondasi eksisting. Renovasi didesain memiliki bentuk unik sesuai kebutuhan (2 kamar anak, 1 kamar utama, ruang keluarga dengan sarana pendukung). Klien kami adalah pasangan yang sederhana, mendambakan rumah yang memiliki estetika yang baik sekaligus tidak mahal.

Saya mengenal salah satu dari mereka dari sejak kecil, kami bertetangga dan sering berpapasan. Justru kemudian pasangannya secara kebetulan mengetahui referensi dari klien kami. Mereka adalah pasangan yang rasional, empatik sekaligus senang dengan seni. Mereka bisa membuka dirinya, sehingga proses desain bisa berjalan lebih lentur dan eksploratif.

Strategi arsitektur dimulai dengan membuka pandangan ke arah belakang dengan memanfaatkan struktur yang digunakan untuk menopang struktur baru. Penambahan lantai menumpu diatas pondasi telapak sesuai dengan perhitungan beban dan kondisi tanah eksisting sekaligus dibuka untuk mendapatkan ruang yang fleksibel.

Celah Antar kiri kanan dan cerobong cahaya berfungsi untuk memasukkan udara segar sekaligus cahaya. Meskipun rumah terdiri dari 2 lantai dan berbatasan dengan dinding tetangga samping tidak menjadi penghalang agar rumah mendapat pencahayaan dan sirkulasi udara yang baik. Tampak depan yang memiliki bagian balkon kantilever dan rongga ruang di samping kanan kiri sehingga menampilkan kesan ringan dan ramping. Kantilever berfungsi sebagai naungan pintu masuk yang ada di bawahnya. Rongga ruang samping ini juga berguna agar semua area mendapat cahaya dan sirkulasi udara yang baik. Pintu masuk didesain dengan bentuk bulat sehingga menampilkan kesan artistik di dalam komposisi arsitektur yang optimal.

Kategori
Project Bioclimatic House

Bioclimatic Home 11 – Gading Tower Home

Proyek rumah Gading terletak di Jalan Gading Indah di Daerah utara Jakarta. Lokasi ini adalah daerah yang memiliki kompleksitasnya problematikanya tersendiri. Dimulai dari seringnya permasalahan banjir muncul. Hal ini diantisipasi kompleks dengan membuat dam dan pintu air. Daerah ini juga dapat dilihat seperti ‘kampung kota’. Beberapa lot yang terletak pada daerah ini merupakan lot-lot kecil berukuran kurang lebih 6 x 15 meter, sekitar 90 meter persegi.

Begitu kami mendesain, pertanyaannya adalah bagaimana mendesain sebuah rumah yang dapat memenuhi kebutuhan program klien kami #rumahandrewmonica— dimana secara keluarga mereka sudah jauh berkembang dan menginginkan program yang besar—tetapi masih bisa mendapatkan penghawaan yang baik, pencahayaan alami yang baik, dan ruang-ruang yang fleksibel agar dapat digunakan untuk 20′- 30 tahun bahkan lebih. Tentunya disesuaikan dengan budget dan estetika yang didiskusikan bersama.

Dari pertanyaan – pertanyaan tersebut, proses desain dimulai dengan mengkelompokkan bagian – bagian yang esensial dan membuat ruang bebas kolom. Tangga diletakkan pada sisi memipih untuk mendapatkan ruangan seluas mungkin. Lubang-lubang cahaya kecil didesain pada sekeliling bangunan agar juga dapat memberikan sebuah batas antara bangunan tetangga dan bangunan utama. Orientasinya yang menghadap ke selatan-utara, memberikan kesempatan untuk fasad untuk dapat dibuka selebar mungkin, dengan tetap mempertimbangkan privasi untuk pengguna dan eco friendly.

Hasilnya adalah komposisi rumah yang pipih dan tinggi yang adaptif di atas lahan terbatas di Gading Indah sembari memperhitungkan konsep Zero water runoff yang bisa berkontribusi untuk Jakarta tercinta.

Kategori
Project Bioclimatic House

Bioclimatic Home 12 – Chimney House

Chimney House is one of RAW Architecture’s works in Tangerang. The design proposes free-curve variants to respond to lights, air movement, views, and programs. The design makes use of natural lighting through skylights above the stairs, corridors, and bathrooms. Opening and skylight in the center of the building are a response to getting enough natural light and allowing air movement.
.
The open plan concept that combines outdoor and indoor spaces provides a limitless space experience and maximizes space quality. The transparent room provides unlimited views and panoramas that can be enjoyed while relaxing inside the house.

Kategori
Project Bioclimatic House

Bioclimatic Home 13 – Lumintu House

New project ongoing at Pantai Indah Kapuk, North Jakarta. #RAWongoing . We designs bioclimatic architecture by study on how industrial and handcrafted details can collaborate to break through the details of normal architectural stereotypes.

Kategori
Project Bioclimatic House

Bioclimatic Home 14 – Pondok Pinang House

Saya bertemu dengan client kami ini Anggit, kira-kira ditahun 2008 ketika saya masih ada di London. Saya tidak pernah menyangka bahwa kami bisa bekerja bersama sebagai arsitek dan client. Anggit adalah seorang pribadi yang menyenangkan dan pikirannya terbuka akan berbagai macam kemungkinan. Ia dilatih oleh ayahnya dengan berbagai macam sudut pandang untuk bisa mempertanyakan “Kenapa sebuah hal itu bisa muncul?”

Di dalam interaksi desain kami menghabiskan waktu cukup lama, 4 tahun. Saya sendiri menemani Anggit didalam proses-proses panjangnya untuk menggali nilai lebih tentang kehidupan. Dan dari diri orang tua dan dia sendiri, saya mengenal banyak pribadi dan banyak konsepsi tentang kebersahajaan. Saya sunggu berterimakasih karena konsep tersebut yang menggarisbawahi apa yang kami sedang perjuangkan didalam studio yaitu sebuah konsep mengengai “Understated Beauty”. Sebuah kecantikan yang bersahaja, tidak berlebihan dan memiliki akar yang kuat.

Perbincangan dengan Anggit berlanjut dengan saat-saat berkenalan dan berdikusi lebih dalam dengan pak Heru, ayahnya Anggit. Dari pak Heru saya mendapatkan cerita bahwa energi di dalam alam ini selalu berputar, cerita tentang bumi, air, dan udara akan terus menghiasi dan menghayati arsitektur. Diantara serpihan memory, kenangan yang begitu dalam tentang rasa trauma, suka dan duka didalam setiap keluarga.

Bumi, air, dan udara akan selalu hadir untuk mengisi relung-relung kehidupan. Di satu waktu, pak Heru menambahkan satu elemen lagi sebelum proyek ini dimulai dengan menambahkan kata tetangga. Hal ini menujukkan bagaimana ia peduli dengan sekitarnya. Sama seperti cerita petugas-petugas keamanan yang begitu bersyukur mendapatkan beras beberapa kilogram perbulan dari dirinya. Arsitektur itu bisa saja sangat rumit, tetapi bisa saja sangat sederhana. Karena cerita-cerita arsitektur ini membuat saya bisa mengenal banyak kebaikan diantara serpihan rekonstruksi kenangan. Dan rumah ini adalah sebuah rekonstruksi kata pak Heru.

Dan saya pikir rekonstruksi ini adalah bagaimana melalui media apapun, termasuk arsitektur, kita bisa saling meningkatkan kehidupan orang lain dengan cara apapun yang kita bisa.

Oleh karena itu, terimakasih Tuhan atas seluruh berkat yang engkau berikan untuk kami semua di dalam bumi ini.

Terimakasih tim @realricharchitectureworkshop : Haikal, Evan dan Adriyan, sudah mengawal project ini, Pandu, Alifian, Thomas dan Anthony juga, serta banyak orang yang lain.

RAWongoing #RAWprogress #AtlantisBioclimaticHome #house #home #details #bioclimatic #architecture #architecturedetails #architectureproject #workingonprogress #dezeen #archdaily #arsitektur #arsitekturindonesia

Kategori
Project Bioclimatic House

Bioclimatic Home 15 – Sentul House

Saya mengenal Rendhie dari Ririe, teman baik saya di Bandung, kemudian dia menghubungi saya beberapa tahun yang lalu untuk mendesain sebuah rumah di daerah Sentul. Lahannya luas tetapi Rendhie dan istrinya, Oxcel hanya menginginkan rumahnya satu lantai saja. Sebuah konsep yang sungguh menarik diatas lahan bercadas. Sebuah lahan yang digali 30 cm pun sudah bertemu tanah keras. Lahan yang tandus tidak memiliki celah akan lapisan akuifer atau lapisan yang penuh dengan air.

Dari situlah saya percaya bahwa bangunan ini perlu menjejak tanah dengan kuat dan memberikan penghijauan untuk menciptakan iklim mikro yang lebih baik. Sembari menciptakan embung-embung resapan supaya air yang ditampung bisa dipergunakan kembali dan kemudian bisa mengalir, meresap perlahan-lahan. Karena batu keras yang ada di dalam tanah masih bisa untuk meresap air meskipun perlahan-lahan.

Rumah ini didesain dengan sejauh mata memandang, kita akan bisa melihat sisi depan dan sisi belakang. Diantara depan dan belakang itu kita bisa melihat padanan antara hubungan istri-suami, dan juga anak-anak di dalam sebuah courtyard yang mengelilingi ketiga program tersebut. Disatukan didalam sebuah ruang keluarga.

Sejauh mata memandang anak-anak bisa mendapatkan ruang privat pribadinya sendiri. Dan ayah bisa bekerja dengan privasinya, juga ibu bisa mendapatkan keleluasaan untuk bisa meluangkan kecintaannya pada dunia seni dan fashion.
Rumah ini adalah sebuah kombinasi segitiga dari hubungan yang sangat sederhana, ayah, ibu dan anak. Didepannya begitu masuk adalah daerah tempat untuk berdo’a dan orang lain. Ada dua kamar yang diperuntukkan untuk para tamu disana. Dan ada mushola tempat keluarga besar bisa berdoa didalam suasana yang terbuka. Bentuk trapesium yang dipancung, dimiringkan ke arah kiblat untuk menghargai sisi-sisi alam dan sebagai wujud syukur akan do’a yang diberikan untuk kesuksesan keluarga ini. Juga wujud syukur akan kesuksesan yang diberikan untuk orang lain.

Di sisi depan kita akan melihat kisi-kisi, gelap dan terang. Jadi diantara gelap dan terang, remang-remang, bayangan dan cahaya, kita bisa melihat bagaimana energi kehidupan, energi do’a, energi keluarga dan energi kontribusi terhadap orang lain itu berkumpul menjadi satu, menciptakan segitiga yang baru. Jadi rumah ini ditujukan untuk menopang dengan orang lain. Sebagai konsep segitiga kehidupan. Semoga rumah ini cepat selesai dan energi yang diberikan untuk orang lain akan semakin dahsyat.

Terimakasih tim @realricharchitectureworkshop : Tyo’ dan Khafid sudah mengawal project ini. Juga seluruh tim konstruksi …

RAWongoing #RAWprogress #SentulBioclimaticHome #house #home #details #bioclimatic #architecture #architecturedetails #architectureproject #workingonprogress #dezeen #archdaily #arsitektur #arsitekturindonesia

Kategori
Project Bioclimatic House

Bioclimatic Home 16 – Boutique Lebak Bulus

Rumah ini milik salah satu client kami yang ada di Pangkalan Jati. Istrinya seorang bisnis woman dan suaminya pilot. Pertemuan dengan client terjadi secara tidak disengaja, mereka menghungi saya dan ternyata kami memiliki salah satu sircle pertemanan yang sama. Cerita dari rumah ini, awalnya pemilik tanah menyerahkan kepada satu developer untuk diolah. Rumah ini dibangun karena ada rumah yang sudah dibangun oleh developer tersebut sebelumnya untuk owner ini, sekaligus untuk training terhadap tanahnya.

Desain rumah ini simple membentuk boxy, seperti membuat satu mesin hidup seperti box yang efisien. Kami meberikan sedikit sentuhan desain yang lebih familiar, lebih klasik, dengan repetisi seperti proporsi yang bisa mereduksi jendela-jendela besar menjadi lebih kecil-kecil, lebih modular, jadi bisa memberikan fleksibelitas.

Dari pintu masuk, ruang dibawah difungsikan untuk service, diatasnya difungsikan untuk living room dan satu bedroom, diatasnya lagi untuk tiga bedroom. Masuk kedalam rumah perlu berputar dulu baru naik tangga, setelah itu ada space terasa lega dari kiri kekanan, bawahnya blong. Di belakangnya ada taman sebagai background dari livingroom.

Permainan background, frontage, dan backstage dimainkan disini. Jadi begitu masuk, naik tangga, belok kanan, ada natural stagenya yaitu living room dibelakangnnya. ftontagenya berupa taman belakang. Setelah itu naik ketas, memutar lagi akan bertemu ruang foyer kecil, tempat untuk master bedroom yang agak besar.

Kategori
Project Bioclimatic House

Bioclimatic Home 17 – Grogol

Rumah ini merupakan rumah untuk satu keluarga, konsep rumah ini efisiensi, massa dibagi menjadi 2 grid. Satu grid untuk ruang pertemuan dan satunya lagi untuk daerah tempat tidur. Didepannya ada void, seperti rumah yang pernah kita desain juga, rumah Barenimalist, keterbatasan spacenya luar biasa, kalau bareminimalis lebih lebar, kalau ini lebih tipis lagi. Voidnya tinggi tapi ditutup oleh material perforated, Seperti tangga plat perforated, jadi orang masih bisa berjalan.

Rumah ini membuat bioclimatic dengan desain bagian depan yang transparan pada bagian kamar anak. Dibawahnya agak tertutup karena rumah ini berada di daerah gang-gang sempit, sehingga membutuhkan privasi.

Ruang-ruang dirumah ini terdapat tiga bedroom, master bedroom dibelakang. Dibawahnya untuk living room dan satu bathroom. Diatasnya untuk master bathroom dan dan kamar kedua anak-anaknya.

Kategori
Project Bioclimatic House

Bioclimatic Home 18 – Platonic House

Rumah yang kami desain di jalan Ciasem Kebayoran ini terletak dikawasan Kebayoran yang memang memiliki karakter yang memiliki pepohonan yang rindang, lebat, dan merupakan urban oase di daerah Jakarta Selatan. Oleh karena itu kami melakukan beberapa studi mengenai bioclimatic design. Sebuah desain yang eco friendly, bagaimana rumah ini bisa turut menyumbangkan kontribusi untuk mereduksi urban heat island seklaigus menciptakan sebuah oase untuk pemilik rumah. Sebuah sequential ruang-ruang yang puitis.

Konsep rumahnya rumah ini memiliki 4 sisi dimana diusahakan sebagian besar dari ruang-ruang privat dan publik mendapatkan 4 sisi yang saling berhadapan dengan sisi-sisi yang transparan. Sehingga mendatkan cahaya matahari tidak langsung yang menerus di sepanjang harinya. Hasil dari bayang-bayang menciptakn lorong-lorong udara yang membelah massa-massa bangunan.

Bangunan diletakkan mepet di sisi-sisi barat, sisi barat dibiarkan solid dan pada sisi timur diletakkan brise soleil dinding artistik yang memberikan aspek privasi yang juga berfungsi sebagai penangkal cahaya dan privasi yang terdiri dari 40’an pettern. 40 pola yang terbentuk dari bata ringan sederhana dan disusun dengan begitu banyak pola. Pola-pola ini membentuk sebuah komposisi gestalt atau tatanan seperti batik yang tak terduga, masa lalu tapi juga masa depan karena ada beberapa sisi yang kami olah dengan beberapa percobaan, juga terkait dengan struktur, kekuatan, komposisi dan bagaimana materialitas itu muncul supaya bisa long lasting.

Dan di sisi sebelah selatan diletakkan kisi-kisi bermotif kayu terbuat dari beton. Sehingga ruang-ruang poetic yang terbentuk menonjolkan urat kayu tapi juga long lasting. Sehingga bisa berumur lama, seperti umur beton. Komposisi ini menciptakan ruang-ruang poetic yang dimulai begitu pemilik rumah atau pengunjung masuk dari ramp ataupun masuk dari arah jembatan, sehingga bisa merasakan lorong-lorong cahaya yang membingkai pandangan orang-orang yang ada didalamnya. Menciptakan visa-vista yang sequence dan tidak terduga.

Secara sistem bangunan rumah ini di desain dengan konsep zero water run off menggunakan recycle water, sehingga desain responsif terhadap lingkungan. Rumah ini juga di desain dengan mempertimbangkan kebutuhan ruang-ruang domestik klien secara sensitif, termasuk penggunaan area komunal yang di inginkan oleh client. Sehingga ruang komunal itu bisa dibentuk dengan berbagai macam program didalamnya, seperti ruang-ruang pengajian yang bisa dilakukan diberbagai macam tempat dan dilantai yang berbeda. Dan juga ruang-ruang berkumpul bersama beberapa gerasi keluarga didalam 3 tempat yang berbeda. Dan juga ruang-ruang intim bersama keluarga besarnya di dalam 3 tempat yang bebeda. Dan termasuk juga bagimana menjaga ruang-ruang yang privat yang khusus, dimana ruang-ruang itu adalah ruang-ruang inti yang dimana keluarga inti bisa mendapatkan ruang intim. Memiliki jarak tapi juga dekat secara personal. Dan ruang ini juga di desain dengan 2 cara axes dimana ditempatkan dua ramp dan sistem transportasi vertikal yang mengakses 4 lantai yang berbeda.

Kategori
Project Bioclimatic House

Bioclimatic Home 19 – Kemang Compound

Rumah ini terletak dijalan Bangka, rumah ini sebenarnya adalah sebuah paviliun sebagai extensi dari rumah utama. Paviliun ini juga sebagai retreat dan bersantai. Seperti landscape dengan ruang-ruang yang naik diatasnya. Paviliun ini ditujukan untuk ruang makan, ruang menonton televisi, ruang kerja, dan ada ruang rahasia juga untuk penyimpanan. Kita desain dengan freeclimber 5cm.

Desain yang menarik dari rumah ini, waktu itu kita membuat struktur bentang lebar tanpa kolom, lebarnya kalau tidak salah hampir 20 meter. Jadi ruangannya itu kayak ruang freestate steam atau melayang. Rumah ini satu lantai, di depannya ada landscape besar yang menghadap kearah arah barat dengan view taman, jadi rumah ini seperti rumah ditengah taman. Walaupun menghadap kearah barat, rumah ini agak teduh karena ada kantilever yang panjangnya sampai 6,5 meter. Bangunan ini seperti menggantung, ada dua core dikiri kanan, dan gantungnya didepan. Menyerupai bentuk sebuah kertas yang diletakkan diatas dua batu.

Kategori
Project Bioclimatic House

Bioclimatic Home 20 – Walet Indah

Renovasi rumah Ini 100% menggunakan struktur lama, project ini baik untuk menjadi referensi dalam peningkatan kualitas hidup. Kita tambahkan ekstention canopy to provide the bio climatic. Ruang-ruang dibuang sekatnya untuk relayout. Memperbaiki kebocoran, membuat fasade menjadi lebih terang.

Intimate, spacenya seperti void yang di keep, lantai 2 nya dibuat blong untuk ruang anak-anak bisa berkumpul bersama. Kedua kamarnya dibuat functional untuk anak-anak. Sebelumnya kamarnya gelap-gelap dan kecil-kecil, kemudian di extend ke arah jemuran belakang jadi di equepat dibelakang. Diatas menjadi 2 kamar besar.

Dibawahnya di blong-blongin supaya ketika pintu dibuka ada sebuah lorong yang beputar, jadi ruangannya terasa lega. Dikiri bawah ada seperti ruangan bathroom yang bisa dipakai untuk kerja. Jadi bedroom nyambung sama lauge, nyambung sama tempat kerja bu Winny yang akuntan. Jadi client beliau didepan, begitu masuk didepan itu ada laugenya, jadi bisa memutar sekaligus bisa diakses dari service.

Diatasnya juga sama, begitu di blong-blong, jemurannya ditaro dibagian belakang, di equepat ruangannya tengahnya yang tadinya gelap, dibuka menjadi skylight untuk ruang jemuran.

Kategori
Project Bioclimatic House

Bioclimatic Home 21 – Botanical House

Kali ini saya berbagi tentang desain dari project yang sedang kami kerjakan di pinggiran jakarta, lokasinya di hook, program ruang dari rumah ini adalah rumah 3 kamar 2 kamar diletakkan di lantai 1 dan kamar master diletakkan di lantai teratas. 

.

Konsepnya adalah arsitektur yang bioklimatik yaitu  membuat rumah yang fungsional,  tropis, memiliki teknologi pengairan juga dan memiliki desain micro climate yang baik. Menariknya ada 3 pohon besar bertajuk 8 meter yang ada di perimeter lahan. Jadi sebenernya desain mencoba untuk bagaimana memberikan bingkai untuk rumah, sekaligus memberikan ruang terbuka yang mendapatkan bayang – bayang dari pepohonan. Rumahnya ada di hook, kiri – kanan potensial untuk memberikan pengalaman inside juga outside.

.

Setelah dikutik – kutik ternyata ruang di bawah bisa dibuat ruangan yang blong dengan beberapa kolom di perimeter. Daerah atas melengkung menyesuaikan bentuk profil lahan dan lantai atas memberikan kanopi untuk daerah bawahnya. Rumah ini menghadap utara dan timur, jadi solusi menggunakan kanopi dan kaca terbuka akan sangat tepat. Menurut saya ruangan yang tidak terlalu tipis dan tidak terlalu tebal itu penting supaya bisa fleksibel apabila ada lebih banyak orang datang dan ngumpul – ngumpul.

.

Rumah ini pas untuk keluarga kecil dengan mimpi yang menantinya. Kebetulan mereka senang dengan rumah ini dan semoga cepat dibangun ya.

Kategori
Project Bioclimatic House

Bioclimatic Home 22 – Tabung

One of the RAW Architecture #RAW99%finished. It’s a 3-story house with a compact, technological design with solar panel integration and a north-south opening.

The layout is separated by 3 simple grids. The shape is like a tube with a bridge in the middle – the result of efforts to incorporate air and light into the bedroom and living room.

Kategori
Project Bioclimatic House

Bioclimatic Home 23 – Morahai

Rumah ini memiliki dua sisi, ia privat juga ada sisi publik. Sisi kamar tidur berisi permainan bentuk lengkung-lengkung yang menerus seperti terasering. Massa bangunannya seakan-akan diangkat untuk mengakomodasi daerah komunal-perpustakaan-dan daerah tempat tinggal. Ada tangga disisi ujungnya yang dikelilingi oleh bukaan kotak-kotak. Kebetulan suami dari sahabat saya, suka berkomunitas. Rumah ini adalah cerminan dua sisi komunitas dan keluarga yang saling bertolak belakang. Explorasi kombinasi bentuk lengkungan dan kotak pada bentuk dan fasad bangunan didesain untuk memberikan aliran udara yang sehat dan menghadirkan cahaya udara alami kedalam ruang.

Istri dari klien kami adalah sahabat lama saya dari SD. Dulu Saya bertemu dia lagi kira-kira 12 tahun yang lalu dan baru 3 tahun yang lalu bertemu kembali dan menjadi klien kami. Kali ini Pekerjaan kayu-kayu, kisi-kisi depan dan kayu ulin yang sudah terpasang.

Layouting didalam rumah rumah ini menyediakan dua jenis zona privasi, publik dan privat karena klien kami menginginkan setiap kerabat yang berkunjung bisa merasa seperti rumah mereka sendiri.

Kategori
Project Bioclimatic House

Bioclimatic Home 24 – Sutera

Rumah ini merupakan renovation project yang ada di lahan yang sudah ada stuktur eksisting. 100% Struktur dipertahankan, renovasi ini hanya perlu diganti atap dan ditambah sedikit. Rumah ini mimiking rumah bu Winny di Pantai Indah Kapuk.

Ekspresinya rumahnya tropis, untuk kanopi yang teduh. Didepannya untuk mobil, dan mobil difokuskan untuk diluar. Jadi begitu masuk seakan-akan ada semacam intimate prominat lagi, sebelum masuk ada kisi-kisi kayu.

Rumah ini ditambahkan fasad untuk mereduksi biaya sebesar mungkin dan resources sebesar mungkin dengan kombinasi relayouting ruang. Membuat ruang menjadi tanpa barrier atau dinding.

Kategori
Project Bioclimatic House

Bioclimatic Home 25 – Banjar

Rumah ini sangat simpel, seperti melayang. Programing rumah ini memiliki 3 bathroom dengan luas bangunan yang cukup kecil karena budget yang terbatas. Semua ruang-ruang dirumah ini menghadap ke open space dan memiliki anatomi koridoor panjang dengan massa yang panjang dan melayang. Rumah hasil dari mimicking Rumah Betang, rumah khas Kalimantan.

Rumah ini memiliki master bedroom yang besar dan integrated dengan ruang anak. Sirkulasi spacenya sangat kecil, tatapi yang berada di living room dan menghadap ketaman lebih besar. Spacenya integrated, sehingga ketika masuk ke pintu masuk, tidak dapat melihat living room secara langsung. Perlu memutar terlebih dahulu dulu, baru masuk. Hal ini untuk membagi privasi ruang. Terdapat foyer terlebih dahulu yang menghadap keluar, baru kedalam. Ini adalah sebuah teknik yang intimate prominent.

Saya bermimpi bahwa di Indonesia itu like prominary the architectural itu tidak bisa terlalu besar. Menurut saya karena space kita terbatas maka intimate prominat prominent itu menjadi penting didalam trapikal climate yang agak adem. Jadi ruang-ruang kecil yang intimate itu menjadi identitas arsitektur di Indonesia.

Kategori
Project Bioclimatic House

Bioclimatic Home 26 – Condet

Rumah ini ada di daerah Condet yang hijau dengan selokan dan dinding pagar yang membatasi di sisi depan. Untuk masuk ke rumah   terdapat jembatan yang melintasi selokan besar selebar 1.5 m.

Orientasi bangunan menghadap utara selatan untuk mereduksi panas matahari dan didesain untuk memudahkan sirkulasi udara silang dengan bukaan jendela dan pintu. Lorong udara vertikal diletakkan di daerah kamar tidur, tangga  dan ruang serba guna yang diperhitungkan dengan kompromi terhadap ketebalan massa bangunan.Ruang – ruang servis dan Kamar mandi didesain dengan bukaan yang langsung terhubung dengan sisi luar bangunan.

Rumah ini didesain dengan orientasi ke taman melihat ke daerah kolam renang di belakang dimana ada pembagian akses privasi sehingga dinding bata yang disusun – susun didesain untuk membagi sisi dalam dan luar.

Sisi depan tampak bangunan didesain dengan menggunakan bata yang diekspose dengan lubang – lubang untuk  menangkal cahaya matahari sekaligus memberikan provasi, dan sisi belakang didesain dengan suasanya yang transaparan, yang pintunya didesain dengan fleksibel sehinga setiap hari penghuni merasa terhubung dengan pepohonan, tanah, dan air di  luar bangunan.

Kategori
Project Bioclimatic House

Bioclimatic Home 27 – Tanjung Duren

Proyek ini berbasis pada renovasi rumah 2 lantai. Kebutuhannya adalah 3 buah kamar di lantai atas dan 1 kamar yang merangkap ruang kerja. Sisi barat ditutup oleh teritisan atap yang lebar dan sisi selatan dibuka dengan sisi sependek mungkin sebagai peneduh dari ruang keluarga di lantai dasar.

Balok dan kolom struktur dipertahankan dengan perbaikan atap dan pemanfaatan ruang miring yang terbentuk oleh atap. Setiap ruangan mendapatkan cahaya langsung termasuk toilet dan kamar tidur. Bahasa bentuk yang digunakan adalah bentuk lengkung hasil dari eksplorasi pengalaman ruang terhadap ruang – ruang kecil dan terbatas.

Kategori
Project Bioclimatic House

Bioclimatic Home 28 – Sunyoto

Pak Sunyoto merupakan salah satu teman ayah saya yang sudah lama sekali, saya bermain tennis bersama ayah saya sejak umur 1995. Mulai berhubungan baik dengan pak Sunyoto mulai dari tahun 2005’an, dari zaman beliau baru berkembang sampai sekrang. Jadi rumah itu merupakan gambaran sebuah relasi hubungan antara antara saya, keluarga besar saya, hubungan saya dengan ayah saya, dan hubungan saya dengan pak Sunyoto langsung.

Rumah ini unik karena ada dua lahan kosong, dimana suatu saat nanti pak Sunyoto punya mimpi bahwa akan ada extention to the new landscape. Rumah beliau yang sekarang agak sempit, jadi tidak punya banyak taman. Mimpinya adalah memiliki rumah yang mempunyai banyak tanaman, karena istinya juga suka tanaman.

Ini adalah rumah dimana baliau sudah mapan dan akan menjadi rumah terakhir, dimana beliau tidak akan pindah-pindah rumah lagi. Beliau memiliki tiga anak, rumah ini didesain dengan pertimbangan untuk menyambut anak-anaknya jika pulang dari luar negeri. Jadi setiap kamar beliau minta ada kamar mandi dalamnya. Oleh karena itu ruang bekumpul menjadi penting, karena beliau merupakan keluarga besar yang membutuhkan ruang berkumpul, ada void, ada skylight, ada cahaya. Arah hadap rumah ini menjadi penting, menghadap ke utara dan selatan, membuat balkoni menjadi teduh dan bisa menjadi tempat untuk menanam tanaman.

Rumah ini benar-benar dipakai untuk mewadahi hobi ibu dan bapak, ibu hobinya menanam, bapak hobinya workshop karena bapak orangnya tidak bisa diam, beliau suka nukang dan berkumpul. Jadi rflecting dibawahnya itu untuk workshop dan area tanaman, diatasnya untuk area keluarga, diatasnya lagi untuk children, dan diatasnya lagi untuk gym dan tanaman lagi. Jadi kita melihat intention utamanya rumah ini adalah rumah milik keluarga Sunyoto yang akan mendefine keluarganya dengan keempat hal tadi.

Kategori
Project Bioclimatic House

Bioclimatic Home 29 – Coil

Pagi-pagi di rumah mas Hugo suatu rumah yang ia namakan Rumah Ngumpar atau Coiling Home. Di awal perbincangan, saya bertemu mas Hugo yang menginginkan rumah yang memiliki cerita. Permintaan seperti itu bukanlah permintaan yang mudah untuk dijalankan dan dimengerti, karena sebuah cerita di dalam sebuah rumah adalah cerita tempat dimana keluarga itu akan hidup dan besar bersama. Kemudian pertemuan-pertemuan setelah itu adalah mengenal mas Hugo yang sangat pengertian dan terbuka akan begitu banyak kemungkinan di dalam membesarkan anak-anak dan memberikan pengertian pada mereka.

Rumah ini kemudian terbentuk dengan kombinasi dan keterbukaan seperti bentuk tangan yang sedang memeluk sekitar. Kumparan menurut saya adalah sebuah kediaman yang akan memberikan kesejukan bagi keluarga yang tinggal di dalamnya.

Kejujuran itu memberikan kehangatan dan energi. Energi itu akan berkumpul seperti didalam sebuah kumparan atau coil dan bentuk lingkaran yang erat antara satu dengan yang lain. Begitulah hubungan antara sebuah keluarga yang disatukan oleh ruang-ruang keluarga tanpa sekat, yang terhubung antara beberapa ruang untuk beristirahat atau ruang tidur yang dihubungkan di dalam sebuah sirkulasi kearah yang vertikal. Dimana ada cahaya masuk dengan konsep Punden Berundak.

Pundak berundak ini menerus dari lantai paling atas berupa skylight sampai ke balkoni dan teras dan kolam renang kemudian sampai ke ramp yang mengelilingi bangunan sebagai pintu utama. Komposisi ini menunjukkan sebuah kesatuan dan pemikiran yang panjang tentang sebuah arsitektur biolimatic yang memberikan kesejukan bagi pengguna, kenyamanan termal, kedekatan personal, dan hopefully sebuah tampak yang menyerupai hutan kota. Ditunggu ya kabar selanjutnya.
.
Terimakasih tim @realricharchitectureworkshop : Mei mei, Rico, Putra, Teh Al, dan Pandu yang sudah mengawal project ini. Juga mas Hugo, seluruh tim pembangun Sirin, Watno.
.

RAWongoing #RAWprogress #Kumparan #CoilBioclimaticHome #house #home #details#bioclimatic #architecture #architecturedetails #architectureproject #workingonprogress #dezeen #archdaily #arsitektur #arsitekturindonesia

Kategori
Project Bioclimatic House

Bioclimatic Home 30 – Vermont

Rumah ini terletak di daerah Bukit Golf, daerah ini lumayan dingin dan nyaman karena banyak tanaman dan banyak pohon-pohon besar. Rumah milik pasangan programmer, terdapat tangga diluar sebelum kepintu masuk, untuk memberikan privasi yang menutupi lantai dasar. Tangga diluar pagar seperti memposisikan bangunan ini diatas gundukan, seperti apa yang dikerjakan oleh Alvar Aalto di bangunan Saynatsalo.

Rumah ini dibawahnya difungsikan sebagai lantai service, diatasnya untuk living room yang diakses melalui tangga-tangga naik ke atas untuk melihat view. Ketika naik keatas baru ada gerbang, ketika dibuak, ruangan blong, dikanan full, baru disebelah kiri ada kolam renang.

Naik ke atas lagi ada dua bedroom, dan dibawah ada satu, jadi total ada tiga badroom. Diatas tempat buat chill out, santai-santai dimana ditengah-tengahnya ada pohon. Voidnya dirumah ini menerus dari atas turun kebawah sampai ke lantai dasar, jadi harapannya lantai dasar tidak akan gelap. Terdapat skylight juga, yang setelah diskusi, ternyata client kami menyukai bentuk lengkung dan menyuakai desain lengkung yang kami desain supaya rumahnya lebih feminim.

Kategori
Project Bioclimatic House

Bioclimatic Home 31 – Banjar Jakarta

Rumah ini didesain untuk satu keluarga besar, kalau berkumpul bisa sampai lima puluh orang, bisa sampai seperti bazar dan hire UMKM untuk datang kesana. Jadi rumah ini sebenarnya merupakan rumah keluarga besarnya dari keluarga client kami ini. Kalau mereka ke Jakarta, mereka akan menginap dirumah ini. Rumah aslih client kami di Banjar, Klaimantan. Jadi rumah ini memang dikhusukan untuk keluarga besarnya, dari keluarga ibu dan kakek-neneknya supaya bisa menginap disini.

Jadi rumah ini seperti the sanctuary of their big family. Dirumah ini kami seperti membuat komposisi tebing dan gunung di atasnya. Diatasnya ada banyak permainan bentuk lengkung-lengkung supaya bidangnya lebih bermain seperti wonders all of the things.

Begitu masuk melalui jendela bulat ada ramp keatas, terdapat ruang berkumpul dilantai dasar dan lantai atas. Jadi dua lantai blong sampai ke belakang memang diperuntukkan untuk ruang berkumpul, kemudian dihubungkan dengan kolam renang diujung yang ketinggiannya diantara lantai dasar dan lantai diatasnya. Jadi kolam renangnya sebagai mezaninnya yang bisa memberikan suasana ruang yang bisa benar-benar chill out. Dilantai atasnya terdapat lima kamar besar, master bedroom diatas dan ada mushollah, Lantai paling atasnya lagi untuk roof garden untuk bersantai.

Kategori
Project Bioclimatic House

Bioclimatic Home 32 – Intercurve

Rumah ini milik seorang dokter, dan suaminya seorang pembalap mobil. Mereka orang-orang yang sangat sibuk, mereka ingin menggunakan rumahnya hanya untuk istirahat saja. Jadi kami membuat komposisi yang membuat mereka bisa beristirahat.

Ekspresi rumah ini simple, seperti bangunan melengkung untuk menahan cahaya dan udara yang biasanya dilakukan oleh kerang. Lengkungan-lengkungan itu mebentuk bentuk yang natural, didepannya terdapat pagar perforated steel melayang. Disisi yang membentuk tower sebelah kanan, terdapat area service tempat thanky air.

Masuk kedalam rumah, disebalah kiri rumah ini terdapat foyer dan dua bedroom, disebelah kanan terdapat satu guest bedroom, melihat ke belakang terlihat view blong dengan taman kecil, diatas ada terdapat master bedroom dan terdapat dua bathroom diatas dan dibawah.

Kategori
Project Bioclimatic House

Bioclimatic Home 33 – Gading Indah

Client dari rumah ini merupakan teman SD saya, suaminya seorang pianis dan busnisman, istrinya ibu rumah tangga. Mereka merawat orang tua yang ikut tinggal bersama mereka dirumah ini. Massa dari rumah ini maju mundur dengan kantilever yang lumayan panjang.

Program ruang dirumah ini ditata berdasarkan fengsui, kamar orang tua diletakkan didepan supaya bisa melihat anaknya, dan posisi kamar anaknya harus dibelakang. Mereka mempunyai anak tiga orang anak, salah satu anaknya juga harus dekat dengan orang tuanya, sehingga didesain ruang yang terkoneksi oleh ruang walking closet yang tersambung membentuk lorong.

Pintu masuk rumah ini berbentuk bulat untuk membuat statement. Lewat kanan tangga ada pintu masuk lagi ke lantai dua. Rumah ini memiliki satu swimming pool diatas, dibawahnya ruangnya blong, diatas garasi ada tempat untuk workshop dan ada living room dengan background adalah kolam renang. Disebalah kanan belakang ada satu bathdroom untuk orang tua yang disatukna dengan lift dan gym, jadi semua ruang menghadap ke kolam renang dan lantai paling atasnya adalah tempat untuk rooftop.